DEHNiso Spacers

Variable holder range for conductors and air-termination rods for maintaining the separation distance according to DIN EN 62305-3 (VDE 0185-305-3).

Spacer bar made of glass-fibre reinforced plastic (GRP), Ø16 mm, UV stabilised, light grey colour, permanent temperature range -50 to +100 °C.

The material factor km = 0.7 is used to determine the separation distance (length of spacer bar).
1 m of spacer bar is equivalent to a clearance in air of 0.7 m.

The DEHNiso spacers meet the requirements of DIN/IEC TS 62561-8.

Details

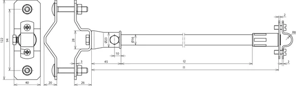
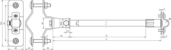
Variable angled support with pipe clamp
lorem ipsum
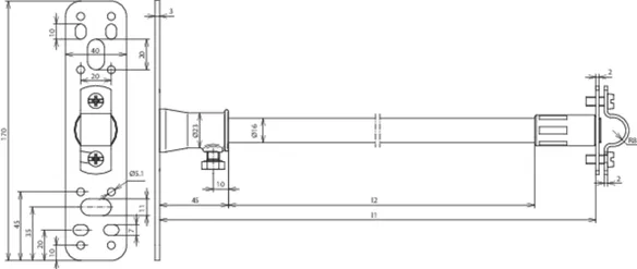
Angled support with saddle clamp
lorem ipsum
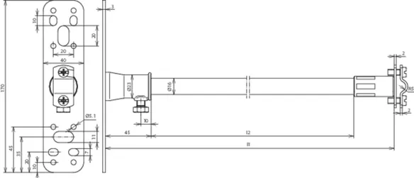
Spacer with attachment, fixing bush and tensioning strap
lorem ipsum

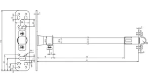
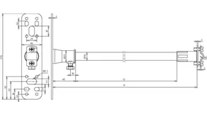
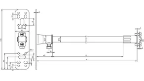
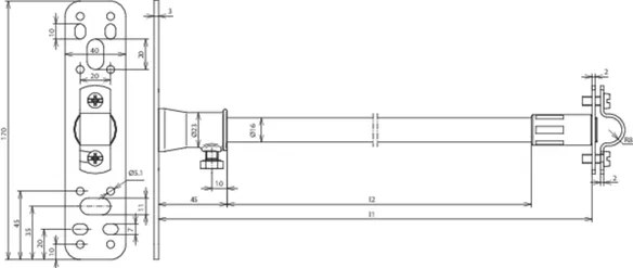
With rod holder and fixing plate

Fixed conductor routing.

3 Products

Part No. 106115 DIDH 16 530 BP V2A GFK

GTIN 4013364100213, Customs tariff No. (EU): 85389099, Gross weight: 488.00 g, PU: 1.00 pc(s)


Images

Additional information

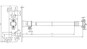
DEHNiso spacer with rod holder; length: 530 mm, StSt
DEHNiso spacer for fixing air-termination rods
e.g. on air-conditioning systems or structural components
for maintaining the separation distance to electrically
conductive parts as per DIN EN 62305-3 (VDE 0185-305-3)
Spacer bar (insulating clearance) made of glass-fibre reinforced
plastic (GRP) Ø16 mm,
material factor km = 0.7
Light grey colour, UV-stabilised.
The spacers are dimensioned to
Eurocode1 (DIN EN 1991-1-4 + DIN EN 1991-1-4/NA)
in conjunction with an air-termination rod 16/10 mm
(free length 2.0 m / clamping length 0.5 to 1.0 m)
including concrete base 17 kg.
Conductor support Rd: 16 mm
Material of conductor holder: StSt
Length: 530 mm
Insulating clearance: 445 mm
Permanent temperature range: -50 °C ... +100 °C
Standard: DIN IEC/TS 62561-8 (VDE V 0185-561-8)

Brand: DEHN
Type: DIDH 16 530 BP V2A GFK
Part No.: 106115
or equivalent.

Certificates

 

Technical data

Conductor support Rd 16 mm
Material of conductor holder StSt
Length (l1) 530 mm
Insulating clearance (l2) 445 mm
Fixing [8x] Ø5.1 / [4x] 7 x 10 / [2x] 11 x 20 mm
Permanent temperature range -50 °C ... +100 °C
Standard DIN IEC/TS 62561-8 (VDE V 0185-561-8)

Product 106115 was added to Notepad.

Product 106115 was added to the cart.

Part No. 106120 DIDH 16 690 BP V2A GFK

GTIN 4013364092945, Customs tariff No. (EU): 85389099, Gross weight: 552.00 g, PU: 1.00 pc(s)


Images

Additional information

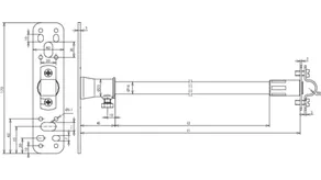
DEHNiso spacer with rod holder; length: 690 mm, StSt
DEHNiso spacer for fixing air-termination rods
e.g. on air-conditioning systems or structural components
for maintaining the separation distance to electrically
conductive parts as per DIN EN 62305-3 (VDE 0185-305-3)
Spacer bar (insulating clearance) made of glass-fibre reinforced
plastic (GRP) Ø16 mm,
material factor km = 0.7
Light grey colour, UV-stabilised
The spacers are dimensioned to
Eurocode1 (DIN EN 1991-1-4 + DIN EN 1991-1-4/NA)
in conjunction with an air-termination rod 16/10 mm
(free length 2.0 m / clamping length 0.5 to 1.0 m)
including concrete base 17 kg.
Conductor support Rd: 16 mm
Material of conductor holder: StSt
Length: 690 mm
Insulating clearance: 605 mm
Permanent temperature range: -50 °C ... +100 °C
Standard: DIN IEC/TS 62561-8 (VDE V 0185-561-8)

Brand: DEHN
Type: DIDH 16 690 BP V2A GFK
Part No.: 106120
or equivalent.

Certificates

 

Technical data

Conductor support Rd 16 mm
Material of conductor holder StSt
Length (l1) 690 mm
Insulating clearance (l2) 605 mm
Fixing [8x] Ø5.1 / [4x] 7 x 10 / [2x] 11 x 20 mm
Permanent temperature range -50 °C ... +100 °C
Standard DIN IEC/TS 62561-8 (VDE V 0185-561-8)

Product 106120 was added to Notepad.

Product 106120 was added to the cart.

Part No. 106123 DIDH 16 1030 BP V2A GFK

GTIN 4013364100220, Customs tariff No. (EU): 85389099, Gross weight: 686.00 g, PU: 1.00 pc(s)


Images

Additional information

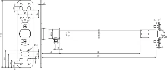
DEHNiso spacer with rod holder; length: 1030 mm, StSt
DEHNiso spacer for fixing air-termination rods
e.g. on air-conditioning systems or structural components
for maintaining the separation distance to electrically
conductive parts as per DIN EN 62305-3 (VDE 0185-305-3)
Spacer bar (insulating clearance) made of glass-fibre reinforced
plastic (GRP) Ø16 mm,
material factor km = 0.7
Light grey colour, UV-stabilised.
The spacers are dimensioned to
Eurocode1 (DIN EN 1991-1-4 + DIN EN 1991-1-4/NA)
in conjunction with an air-termination rod 16/10 mm
(free length 2.0 m / clamping length 0.5 to 1.0 m)
including concrete base 17 kg.
Conductor support Rd: 16 mm
Material of conductor holder: StSt
Length: 1030 mm
Insulating clearance: 945 mm
Permanent temperature range: -50 °C ... +100 °C
Standard: DIN IEC/TS 62561-8 (VDE V 0185-561-8)

Brand: DEHN
Type: DIDH 16 1030 BP V2A GFK
Part No.: 106123
or equivalent.

Certificates

 

Technical data

Conductor support Rd 16 mm
Material of conductor holder StSt
Length (l1) 1030 mm
Insulating clearance (l2) 945 mm
Fixing [8x] Ø5.1 / [4x] 7 x 10 / [2x] 11 x 20 mm
Permanent temperature range -50 °C ... +100 °C
Standard DIN IEC/TS 62561-8 (VDE V 0185-561-8)

Product 106123 was added to Notepad.

Product 106123 was added to the cart.


With conductor holder and fixing plate

Fixed conductor routing.

3 Products

Part No. 106090 DIDH 7.10 530 BP V2A GFK

GTIN 4013364100190, Customs tariff No. (EU): 85389099, Gross weight: 470.00 g, PU: 1.00 pc(s)


Images

Additional information

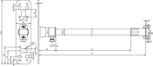
DEHNiso spacer with conductor holder; length: 530 mm, StSt
DEHNiso spacer for fixing conductors
e.g. on air-conditioning systems or structural components
for maintaining the separation distance to electrically
conductive parts as per DIN EN 62305-3 (VDE 0185-305-3)
Spacer bar (insulating clearance) made of glass-fibre reinforced
plastic (GRP) Ø16 mm,
material factor km = 0.7
Light grey colour, UV-stabilised.
The spacers are dimensioned to
Eurocode 1 (DIN EN 1991-1-4 + DIN EN 1991-1-4/NA) for a
max. gust wind speed (holder distance: 1.0 m, Al, Ø8–10 mm)
of 240 km/h.
Conductor support Rd: 7-10 mm
Material of conductor holder: StSt
Length: 530 mm
Insulating clearance: 445 mm
Permanent temperature range: -50 °C ... +100 °C
Standard: DIN IEC/TS 62561-8 (VDE V 0185-561-8)

Brand: DEHN
Type: DIDH 7.10 530 BP V2A GFK
Part No.: 106090
or equivalent.

Certificates

 

Technical data

Conductor support Rd 7-10 mm
Material of conductor holder StSt
Length (l1) 530 mm
Insulating clearance (l2) 445 mm
Fixing [8x] Ø5.1 / [4x] 7 x 10 / [2x] 11 x 20 mm
Permanent temperature range -50 °C ... +100 °C
Max. gust wind speed (holder distance 1000 mm, Al Ø8 mm) 240 km/h
Standard DIN IEC/TS 62561-8 (VDE V 0185-561-8)

Product 106090 was added to Notepad.

Product 106090 was added to the cart.

Part No. 106100 DIDH 7.10 690 BP V2A GFK

GTIN 4013364092907, Customs tariff No. (EU): 85389099, Gross weight: 544.80 g, PU: 1.00 pc(s)


Images

Additional information

DEHNiso spacer with conductor holder; length: 690 mm, StSt
DEHNiso spacer for fixing conductors
e.g. on air-conditioning systems or structural components
for maintaining the separation distance to electrically
conductive parts as per DIN EN 62305-3 (VDE 0185-305-3)
Spacer bar (insulating clearance) made of glass-fibre reinforced
plastic (GRP) Ø16 mm,
material factor km = 0.7
Light grey colour, UV-stabilised.
The spacers are dimensioned to
Eurocode 1 (DIN EN 1991-1-4 + DIN EN 1991-1-4/NA) for a
max. gust wind speed (holder distance: 1.0 m, Al, Ø8–10 mm)
of 198 km/h.
Conductor support Rd: 7-10 mm
Material of conductor holder: StSt
Length: 690 mm
Insulating clearance: 605 mm
Permanent temperature range: -50 °C ... +100 °C
Standard: DIN IEC/TS 62561-8 (VDE V 0185-561-8)

Brand: DEHN
Type: DIDH 7.10 690 BP V2A GFK
Part No.: 106100
or equivalent.

Certificates

 

Technical data

Conductor support Rd 7-10 mm
Material of conductor holder StSt
Length (l1) 690 mm
Insulating clearance (l2) 605 mm
Fixing [8x] Ø5.1 / [4x] 7 x 10 / [2x] 11 x 20 mm
Permanent temperature range -50 °C ... +100 °C
Max. gust wind speed (holder distance 1000 mm, Al Ø8 mm) 198 km/h
Standard DIN IEC/TS 62561-8 (VDE V 0185-561-8)

Product 106100 was added to Notepad.

Product 106100 was added to the cart.

Part No. 106105 DIDH 7.10 1030 BP V2A GFK

GTIN 4013364100206, Customs tariff No. (EU): 85389099, Gross weight: 658.00 g, PU: 1.00 pc(s)


Images

Additional information

DEHNiso spacer with conductor holder; length: 1030 mm, StSt
DEHNiso spacer for ring conductors
installed in a installed in a concrete base (8.5 kg)
with fixing wedge (part no. 102 075)
for maintaining the separation distance to electrically
conductive parts as per DIN EN 62305-3 (VDE 0185-305-3)
Spacer bar (insulating clearance) made of glass-fibre reinforced
plastic (GRP) Ø16 mm,
material factor km = 0.7
Light grey colour, UV-stabilised.
The spacers are dimensioned to
Eurocode 1 (DIN EN 1991-1-4 + DIN EN 1991-1-4/NA) for a
max. gust wind speed (holder distance: 1.0 m, Al, Ø8–10 mm)
of 140 km/h.
Conductor support Rd: 7-10 mm
Material of conductor holder: StSt
Length: 1030 mm
Insulating clearance: 945 mm
Permanent temperature range: -50 °C ... +100 °C
Standard: DIN IEC/TS 62561-8 (VDE V 0185-561-8)

Brand: DEHN
Type: DIDH 7.10 1030 BP V2A GFK
Part No.: 106105
or equivalent.

Certificates

 

Technical data

Conductor support Rd 7-10 mm
Material of conductor holder StSt
Length (l1) 1030 mm
Insulating clearance (l2) 945 mm
Fixing [8x] Ø5.1 / [4x] 7 x 10 / [2x] 11 x 20 mm
Permanent temperature range -50 °C ... +100 °C
Max. gust wind speed (holder distance 1000 mm, Al Ø8 mm) 140 km/h
Standard DIN IEC/TS 62561-8 (VDE V 0185-561-8)

Product 106105 was added to Notepad.

Product 106105 was added to the cart.


With rod holder and pipe clamp

3 Products

Part No. 106225 DIDH 16 530 RS40.60 V2A

GTIN 4013364100299, Customs tariff No. (EU): 85389099, Gross weight: 684.00 g, PU: 1.00 pc(s)


Images

Additional information

DEHNiso spacer with rod holder; length: 530 mm, StSt
DEHNiso spacer for fixing air-termination rods
e.g. on pipes or masts
for maintaining the separation distance to electrically
conductive parts as per DIN EN 62305-3 (VDE 0185-305-3)
Spacer bar (insulating clearance) made of glass-fibre reinforced
plastic (GRP) Ø16 mm,
material factor km = 0.7
Light grey colour, UV-stabilised.
The spacers are dimensioned to
Eurocode 1 (DIN EN 1991-1-4 + DIN EN 1991-1-4/NA)
in conjunction with an air-termination rod 16/10 mm
(free length 2.0 m / clamping length 0.5 to 1.0 m).
Conductor support Rd: 16 mm
Material of conductor holder: StSt
Length: 530 mm
Insulating clearance: 445 mm
Clamping range of pipe: 40-60 mm (1 1/4-2")
Permanent temperature range: -50 °C ... +100 °C
Standard: DIN IEC/TS 62561-8 (VDE V 0185-561-8)

Brand: DEHN
Type: DIDH 16 530 RS40.60 V2A
Part No.: 106225
or equivalent.

Certificates

 

Technical data

Conductor support Rd 16 mm
Material of conductor holder StSt
Length (l1) 530 mm
Insulating clearance (l2) 445 mm
Clamping range of pipe 40-60 mm (1 1/4-2")
Permanent temperature range -50 °C ... +100 °C
Standard DIN IEC/TS 62561-8 (VDE V 0185-561-8)

Product 106225 was added to Notepad.

Product 106225 was added to the cart.

Part No. 106226 DIDH 16 690 RS40.60 V2A

GTIN 4013364098930, Customs tariff No. (EU): 85389099, Gross weight: 722.20 g, PU: 1.00 pc(s)


Images

Additional information

DEHNiso spacer with rod holder; length: 690 mm, StSt
DEHNiso spacer for fixing air-termination rods
e.g. on pipes or masts
for maintaining the separation distance to electrically
conductive parts as per DIN EN 62305-3 (VDE 0185-305-3)
Spacer bar (insulating clearance) made of glass-fibre reinforced
plastic (GRP) Ø16 mm,
material factor km = 0.7
Light grey colour, UV-stabilised.
The spacers are dimensioned to
Eurocode 1 (DIN EN 1991-1-4 + DIN EN 1991-1-4/NA)
in conjunction with an air-termination rod 16/10 mm
(free length 2.0 m / clamping length 0.5 to 1.0 m).
Conductor support Rd: 16 mm
Material of conductor holder: StSt
Length: 690 mm
Insulating clearance: 605 mm
Clamping range of pipe: 40-60 mm (1 1/4-2")
Permanent temperature range: -50 °C ... +100 °C
Standard: DIN IEC/TS 62561-8 (VDE V 0185-561-8)

Brand: DEHN
Type: DIDH 16 690 RS40.60 V2A
Part No.: 106226
or equivalent.

Certificates

 

Technical data

Conductor support Rd 16 mm
Material of conductor holder StSt
Length (l1) 690 mm
Insulating clearance (l2) 605 mm
Clamping range of pipe 40-60 mm (1 1/4-2")
Permanent temperature range -50 °C ... +100 °C
Standard DIN IEC/TS 62561-8 (VDE V 0185-561-8)

Product 106226 was added to Notepad.

Product 106226 was added to the cart.

Part No. 106228 DIDH 16 1030 RS40.60 V2A

GTIN 4013364100305, Customs tariff No. (EU): 85389099, Gross weight: 877.60 g, PU: 1.00 pc(s)


Images

Additional information

DEHNiso spacer with rod holder; length: 1030 mm, StSt
DEHNiso spacer for fixing air-termination rods
e.g. on pipes or masts
for maintaining the separation distance to electrically
conductive parts as per DIN EN 62305-3 (VDE 0185-305-3)
Spacer bar (insulating clearance) made of glass-fibre reinforced
plastic (GRP) Ø16 mm,
material factor km = 0.7
Light grey colour, UV-stabilised.
The spacers are dimensioned to
Eurocode 1 (DIN EN 1991-1-4 + DIN EN 1991-1-4/NA)
in conjunction with an air-termination rod 16/10 mm
(free length 2.0 m / clamping length 0.5 to 1.0 m).
Conductor support Rd: 16 mm
Material of conductor holder: StSt
Length: 1030 mm
Insulating clearance: 945 mm
Clamping range of pipe: 40-60 mm (1 1/4-2")
Permanent temperature range: -50 °C ... +100 °C
Standard: DIN IEC/TS 62561-8 (VDE V 0185-561-8)

Brand: DEHN
Type: DIDH 16 1030 RS40.60 V2A
Part No.: 106228
or equivalent.

Certificates

 

Technical data

Conductor support Rd 16 mm
Material of conductor holder StSt
Length (l1) 1030 mm
Insulating clearance (l2) 945 mm
Clamping range of pipe 40-60 mm (1 1/4-2")
Permanent temperature range -50 °C ... +100 °C
Standard DIN IEC/TS 62561-8 (VDE V 0185-561-8)

Product 106228 was added to Notepad.

Product 106228 was added to the cart.


With rod holder and pipe clamp

3 Products

Part No. 106245 DIDH 16 530 SB50.300 V2A

GTIN 4013364100336, Customs tariff No. (EU): 85389099, Gross weight: 561.40 g, PU: 1.00 pc(s)


Images

Additional information

DEHNiso spacer with rod holder; length: 530 mm, StSt
DEHNiso spacer for fixing air-termination rods
e.g. on pipes or masts
for maintaining the separation distance to electrically
conductive parts as per DIN EN 62305-3 (VDE 0185-305-3)
Spacer bar (insulating clearance) made of glass-fibre reinforced
plastic (GRP) Ø16 mm,
material factor km = 0.7
Light grey colour, UV-stabilised.
The spacers are dimensioned to
Eurocode 1 (DIN EN 1991-1-4 + DIN EN 1991-1-4/NA)
in conjunction with an air-termination rod 16/10 mm
(free length 2.0 m / clamping length 0.5 to 1.0 m).
Conductor support Rd: 16 mm
Material of conductor holder: StSt
Length: 530 mm
Insulating clearance: 445 mm
Clamping range of pipe: 50-300 mm
Permanent temperature range: -50 °C ... +100 °C
Standard: DIN IEC/TS 62561-8 (VDE V 0185-561-8)

Brand: DEHN
Type: DIDH 16 530 SB50.300 V2A
Part No.: 106245
or equivalent.

Certificates

 

Technical data

Conductor support Rd 16 mm
Material of conductor holder StSt
Length (l1) 530 mm
Insulating clearance (l2) 445 mm
Clamping range of pipe 50-300 mm
Permanent temperature range -50 °C ... +100 °C
Standard DIN IEC/TS 62561-8 (VDE V 0185-561-8)

Product 106245 was added to Notepad.

Product 106245 was added to the cart.

Part No. 106246 DIDH 16 690 SB50.300 V2A

GTIN 4013364098954, Customs tariff No. (EU): 85389099, Gross weight: 608.10 g, PU: 1.00 pc(s)


Images

Additional information

DEHNiso spacer with rod holder; length: 690 mm, StSt
DEHNiso spacer for fixing air-termination rods
e.g. on pipes or masts
for maintaining the separation distance to electrically
conductive parts as per DIN EN 62305-3 (VDE 0185-305-3)
Spacer bar (insulating clearance) made of glass-fibre reinforced
plastic (GRP) Ø16 mm,
material factor km = 0.7
Light grey colour, UV-stabilised.
The spacers are dimensioned to
Eurocode 1 (DIN EN 1991-1-4 + DIN EN 1991-1-4/NA)
in conjunction with an air-termination rod 16/10 mm
(free length 2.0 m / clamping length 0.5 to 1.0 m).
Conductor support Rd: 16 mm
Material of conductor holder: StSt
Length: 690 mm
Insulating clearance: 605 mm
Clamping range of pipe: 50-300 mm
Permanent temperature range: -50 °C ... +100 °C
Standard: DIN IEC/TS 62561-8 (VDE V 0185-561-8)

Brand: DEHN
Type: DIDH 16 690 SB50.300 V2A
Part No.: 106246
or equivalent.

Certificates

 

Technical data

Conductor support Rd 16 mm
Material of conductor holder StSt
Length (l1) 690 mm
Insulating clearance (l2) 605 mm
Clamping range of pipe 50-300 mm
Permanent temperature range -50 °C ... +100 °C
Standard DIN IEC/TS 62561-8 (VDE V 0185-561-8)

Product 106246 was added to Notepad.

Product 106246 was added to the cart.

Part No. 106248 DIDH 16 1030 SB50.300 V2A

GTIN 4013364100343, Customs tariff No. (EU): 85389099, Gross weight: 762.00 g, PU: 1.00 pc(s)


Images

Additional information

DEHNiso spacer; length with rod holder: 1030 mm, StSt
DEHNiso spacer for fixing air-termination rods
e.g. on pipes or masts
for maintaining the separation distance to electrically
conductive parts as per DIN EN 62305-3 (VDE 0185-305-3)
Spacer bar (insulating clearance) made of glass-fibre reinforced
plastic (GRP) Ø16 mm,
material factor km = 0.7
Light grey colour, UV-stabilised.
The spacers are dimensioned to
Eurocode 1 (DIN EN 1991-1-4 + DIN EN 1991-1-4/NA)
in conjunction with an air-termination rod 16/10 mm
(free length 2.0 m / clamping length 0.5 to 1.0 m).
Conductor support Rd: 16 mm
Material of conductor holder: StSt
Length: 1030 mm
Insulating clearance: 945 mm
Clamping range of pipe: 50-300 mm
Permanent temperature range: -50 °C ... +100 °C
Standard: DIN IEC/TS 62561-8 (VDE V 0185-561-8)

Brand: DEHN
Type: DIDH 16 1030 SB50.300 V2A
Part No.: 106248
or equivalent.

Certificates

 

Technical data

Conductor support Rd 16 mm
Material of conductor holder StSt
Length (l1) 1030 mm
Insulating clearance (l2) 945 mm
Clamping range of pipe 50-300 mm
Permanent temperature range -50 °C ... +100 °C
Standard DIN IEC/TS 62561-8 (VDE V 0185-561-8)

Product 106248 was added to Notepad.

Product 106248 was added to the cart.


With DEHNgrip conductor holder

For installation, e.g. in a concrete base (Part No. 102 075). Loose conductor routing.

1 Product

Part No. 106160 DIDH 8 675 KT V2A GFK

GTIN 4013364092938, Customs tariff No. (EU): 85389099, Gross weight: 286.50 g, PU: 1.00 pc(s)

Predecessor

Images

Additional information

DEHNiso spacer with DEHNgrip conductor holder; length: 675 mm, StSt
DEHNiso spacer for ring conductors
installed in a concrete base with fixing wedge for maintaining the
separation distance to electrically conductive parts as per DIN
EN 62305-3 (VDE 0185-305-3)
Spacer bar (insulating clearance) made of glass-fibre reinforced
plastic (GRP) Ø16 mm,
material factor km = 0.7
Light grey colour, UV-stabilised.
The DEHNiso spacers are dimensioned to
Eurocode 1 (DIN EN 1991-1-4 + DIN EN 1991-1-4/NA) for a
max. gust wind speed of 176 km/h.
Conductor support Rd: 8 mm
Material of conductor holder: StSt
Length: 675 mm
Insulating clearance: 590 mm
Permanent temperature range: -50 °C ... +100 °C
Max. gust wind speed (base 8.5 kg, holder distance 1000 mm, Al Ø8 mm): 104 km/h
Max. gust wind speed (base 17 kg, holder distance 1000 mm, Al Ø8 mm): 176 km/h
Standard: DIN IEC/TS 62561-8 (VDE V 0185-561-8)

Brand: DEHN
Type: DIDH 8 675 KT V2A GFK
Part No.: 106160
or equivalent.

Certificates

 

Technical data

Conductor support Rd 8 mm
Material of conductor holder StSt
Length (l1) 675 mm
Insulating clearance (l2) 590 mm
Permanent temperature range -50 °C ... +100 °C
Max. gust wind speed (base 8.5 kg, holder distance 1000 mm, Al Ø8 mm) 104 km/h
Max. gust wind speed (base 17 kg, holder distance 1000 mm, Al Ø8 mm) 176 km/h
Standard DIN IEC/TS 62561-8 (VDE V 0185-561-8)

Product 106160 was added to Notepad.

Product 106160 was added to the cart.


With MMV clamp

For crossing points, when installed in a concrete base (Part No. 102 075), fixed conductor routing.

1 Product

Part No. 106150 DIDH 6.10 675 MMV KT V2A GFK

GTIN 4013364092914, Customs tariff No. (EU): 85389099, Gross weight: 340.00 g, PU: 1.00 pc(s)


Images

Additional information

DEHNiso spacer with MMV clamp, 675 mm long, StSt
DEHNiso spacer with MMV clamp, fixed conductor routing
e.g. for cross points for ring conductors
installed in a concrete base with fixing wedge for maintaining
the separation distance to electrically conductive parts as per
DIN EN 62305-3 (VDE 0185-305-3)
Spacer bar (insulating clearance) made of glass-fibre reinforced
plastic (GRP) Ø16 mm,
material factor km = 0.7
Light grey colour, UV-stabilised.
The DEHNiso spacers are dimensioned to
Eurocode 1 (DIN EN 1991-1-4 + DIN EN 1991-1-4/NA) for a
max. gust wind speed of 176 km/h.
Conductor support Rd: 6-10 mm
Material of conductor holder: StSt
Length: 675 mm
Insulating clearance: 590 mm
Permanent temperature range: -50 °C ... +100 °C
Max. gust wind speed (base 8.5 kg, holder distance 1000 mm, Al Ø8 mm): 104 km/h
Max. gust wind speed (base 17 kg, holder distance 1000 mm, Al Ø8 mm): 176 km/h
Standard: DIN IEC/TS 62561-8 (VDE V 0185-561-8)

Brand: DEHN
Type: DIDH 6.10 675 MMV KT V2A GFK
Part No.: 106150
or equivalent.

Certificates

 

Technical data

Conductor support Rd 6-10 mm
Material of conductor holder StSt
Length (l1) 675 mm
Insulating clearance (l2) 590 mm
Permanent temperature range -50 °C ... +100 °C
Max. gust wind speed (base 8.5 kg, holder distance 1000 mm, Al Ø8 mm) 104 km/h
Max. gust wind speed (base 17 kg, holder distance 1000 mm, Al Ø8 mm) 176 km/h
Standard DIN IEC/TS 62561-8 (VDE V 0185-561-8)

Product 106150 was added to Notepad.

Product 106150 was added to the cart.


back to top