Expansion Strap for Foundation Earth Electrodes

For leading the foundation earth electrode through the expansion joints of large foundations (several sections). It is not necessary to lead the earth electrode out of the base plate, because the polystyrene block can be concreted in the one section, the other end of the strap will be carried on loosely in the opposite section.

1 Product

Part No. 308150 DB 700X30X4 V2A

GTIN 4013364106970, Customs tariff No. (EU): 85359000, Gross weight: 682.00 g, PU: 1.00 pc(s)


Images

Additional information

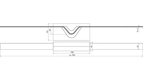
Expansion strap for foundation earth electrodes, StSt
Expansion strap for foundation earth electrodes for leading the foundation earth electrode in extended
foundations (several sections) through the expansion
or isolating joints. Thus no need to lead the earth electrode out of the base plate.
Material of strap: StSt
Dimensions of strap : approx. 700 x 30 x (4 x 1) mm
Cross-section: 120 mm2
Material of block: polystyrene
Short-circuit current (a.c. 50 Hz / d.c.): 6 kA

Brand: DEHN
Type: DB 700X30X4 V2A
Part No.: 308150
or equivalent.

Certificates

 

Technical data

Material of strap StSt
Dimensions of strap (l x w x d) approx. 700 x 30 x (4 x 1) mm
Cross-section 120 mm2
Material of block polystyrene
Dimensions of block (l x w x d) 180 x 85 x 45 mm
Short-circuit current (a.c. 50 Hz / d.c.) (1 s; ≤ 300 °C) 6 kA

Product 308150 was added to Notepad.

Product 308150 was added to the cart.


back to top