Pipe Clamps for Ex Zones 1/21, 2/22

Up until now, connections for the equipotential bonding and the lightning equipotential bonding in hazardous areas have often been welded or made with threaded bushings. The use of clamps is only approved if ignition safety in the event of lightning currents has been proven. DEHN has provided proof of the non-ignition of the pipe clamps during lightning current loads. By implementing the test according to EN 62561-1 (VDE 0185-561-1): requirements for connecting components (terminals and connectors) in an explosive atmosphere, the non-ignition of the specimen under a lightning current load of up to 50 kA (10/350 µs) was proven. The design of this novel, patented pipe clamp for the hazardous area firstly includes safe electrical contact through two contact clips, and secondly mechanical fixing through an electrically insulated clamp body in each case. The mounting set (part. no. 540902), available separately, is required once for the correct pretensioning of the tensioning strap.

The Ex pipe clamp provides the following connection possibilities:
– Round conductors made of Cu, St/tZn, Al, StSt with Ø8/10 mm or flexible / stranded copper conductors with a cross section of 16–35 mm2 with crimped cable lug made out of E-Cu (DIN 46235)
– flat conductor made of copper with minimum dimensions 20 x 2.5 mm with a hole Ø10.5 mm

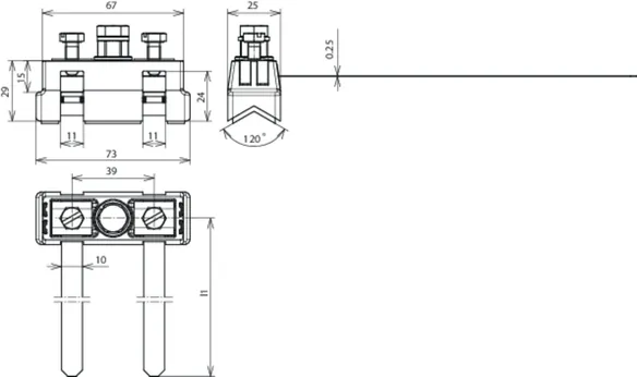
Type EX BRS 27

Clamping range of Ø6-27 mm (3/4")

1 Product

Part No. 540821 EX BRS 27

GTIN 4013364123724, Customs tariff No. (EU): 85359000, Gross weight: 238.00 g, PU: 1.00 pc(s)


Images

Additional information

Pipe clamps for hazardous areas EX BRS 27
Pipe clamp for hazardous areas
for electrical contacting of pipes
in hazardous areas and implementing
lightning equipotential bonding
according to DIN EN 62305-3 (VDE 0185-305-3)
Use in potentially explosive areas
Ex zones 1 and 2 (gases, vapours, mists) and
Ex zones 21 and 22 (dusts)
Necessary mounting set (part no. 540902)
available separately
Lightning impulse current (10/350 µs) Cu Ø6-12 mm: 10 kA
Lightning impulse current (10/350 µs) Cu Ø12-27 mm (3/4"): 20 kA
Lightning impulse current (10/350 µs) Cu Ø27 mm (3/4"): 25 kA
Lightning impulse current (10/350 µs) St/tZn Ø17-27 mm (3/4"): 25 kA
Lightning impulse current (10/350 µs) StSt Ø6–27 mm: 10 kA
Lightning impulse current (10/350 µs) StSt Ø27 mm (3/4"): 25 kA
Clamping range pipe Ø: 6-27 mm (3/4")
Material of clamp body: polyamide
Material of grip head / tensioning strap: StSt
Material of contact piece: brass/gal Sn
Standard: DIN CLC/TS 50703-2 (VDE V 0185-703-2)

Brand: DEHN
Type: EX BRS 27
Part No.: 540821
or equivalent.

Certificates

 

Technical data

Lightning impulse current (10/350 µs) Cu Ø6-12 mm (Iimp ) 10 kA
Lightning impulse current (10/350 µs) Cu Ø12-27 mm (3/4") (Iimp ) 20 kA
Lightning impulse current (10/350 µs) Cu Ø27 mm (3/4") (Iimp ) 25 kA
Lightning impulse current (10/350 µs) St/tZn Ø17-27 mm (3/4") (Iimp ) 25 kA
Lightning impulse current (10/350 µs) StSt Ø6–27 mm (Iimp ) 10 kA
Lightning impulse current (10/350 µs) StSt Ø27 mm (3/4") (Iimp ) 25 kA
Connection M8
Clamping range pipe Ø 6-27 mm (3/4")
Material of clamp body polyamide
Material of grip head / tensioning strap StSt
Material of contact piece brass/gal Sn
Standard DIN CLC/TS 50703-2 (VDE V 0185-703-2)

Product 540821 was added to Notepad.

Product 540821 was added to the cart.


Type EX BRS 90 / 300 / 500

Type EX BRS 90 (Part No. 540 801) clamping range Ø27 (3/4") to 89 mm (3").
Type EX BRS 300 (Part No. 540 803) clamping range Ø89 (3") to 300 mm.
Type EX BRS 500 (Part No. 540 805) clamping range Ø300 to 500 mm.

3 Products

Part No. 540801 EX BRS 90

GTIN 4013364115460, Customs tariff No. (EU): 85359000, Gross weight: 583.00 g, PU: 1.00 pc(s)


Images

Additional information

Pipe clamps for Ex zones EX BRS 90
Pipe clamp for hazardous areas
for electrical contacting of pipes
in hazardous areas and implementing
lightning equipotential bonding
according to DIN EN 62305-3 (VDE 0185-305-3)
Use in potentially explosive areas
Ex zones 1 and 2 (gases, vapours, mists) and
Ex zones 21 and 22 (dusts)
Necessary mounting set (part no. 540902)
available separately
Lightning impulse current (10/350 µs) Cu: 50 kA
Lightning impulse current (10/350 µs) St/tZn: 50 kA
Lightning impulse current (10/350 µs) StSt: 25 kA
Class of lightning current carrying capability acc. to EN 62561-1: N
Clamping range pipe Ø: 27-89 mm (3/4-3")
Material of clamp body: polyamide
Material of grip head / tensioning strap: StSt
Material of contact piece: Cu/gal Sn
Standard: EN 62561-1

Brand: DEHN
Type: EX BRS 90
Part No.: 540801
or equivalent.

Certificates

 

Technical data

Lightning impulse current (10/350 µs) Cu (Iimp ) 50 kA
Lightning impulse current (10/350 µs) St/tZn (Iimp ) 50 kA
Lightning impulse current (10/350 µs) StSt (Iimp ) 25 kA
Class of lightning current carrying capability acc. to EN 62561-1 N
Connection M10
Clamping range pipe Ø 27-89 mm (3/4-3")
Material of clamp body polyamide
Material of grip head / tensioning strap StSt
Material of contact piece Cu /gal Sn
Standard EN 62561-1

Product 540801 was added to Notepad.

Product 540801 was added to the cart.

Part No. 540803 EX BRS 300

GTIN 4013364115477, Customs tariff No. (EU): 85359000, Gross weight: 645.50 g, PU: 1.00 pc(s)


Images

Additional information

Pipe clamps for hazardous areas EX BRS 300
Pipe clamp for hazardous areas
for electrical contacting of pipes
in hazardous areas and implementing
lightning equipotential bonding
according to DIN EN 62305-3 (VDE 0185-305-3)
Use in potentially explosive areas
Ex zones 1 and 2 (gases, vapours, mists) and
Ex zones 21 and 22 (dusts)
Necessary mounting set (part no. 540902)
available separately
Lightning impulse current (10/350 µs) Cu: 50 kA
Lightning impulse current (10/350 µs) St/tZn: 50 kA
Lightning impulse current (10/350 µs) StSt: 50 kA
Class of lightning current carrying capability acc. to EN 62561-1: N
Clamping range pipe Ø: 89 (3")-300 mm
Material of clamp body: polyamide
Material of grip head / tensioning strap: StSt
Material of contact piece: Cu/gal Sn
Standard: EN 62561-1

Brand: DEHN
Type: EX BRS 300
Part No.: 540803
or equivalent.

Certificates

 

Technical data

Lightning impulse current (10/350 µs) Cu (Iimp ) 50 kA
Lightning impulse current (10/350 µs) St/tZn (Iimp ) 50 kA
Lightning impulse current (10/350 µs) StSt (Iimp ) 50 kA
Class of lightning current carrying capability acc. to EN 62561-1 N
Connection M10
Clamping range pipe Ø 89 (3")-300 mm
Material of clamp body polyamide
Material of grip head / tensioning strap StSt
Material of contact piece Cu /gal Sn
Standard EN 62561-1

Product 540803 was added to Notepad.

Product 540803 was added to the cart.

Part No. 540805 EX BRS 500

GTIN 4013364128873, Customs tariff No. (EU): 85359000, Gross weight: 846.00 g, PU: 1.00 pc(s)


Images

Additional information

Pipe clamps for hazardous areas EX BRS 500
Pipe clamp for hazardous areas
for electrical contacting of pipes
in hazardous areas and implementing
lightning equipotential bonding
according to DIN EN 62305-3 (VDE 0185-305-3)
Use in potentially explosive areas
Ex zones 1 and 2 (gases, vapours, mists) and
Ex zones 21 and 22 (dusts)
Necessary mounting set (part no. 540902)
available separately
Lightning impulse current (10/350 µs) St/bare: 50 kA
Lightning impulse current (10/350 µs) StSt: 50 kA
Class of lightning current carrying capability acc. to EN 62561-1: N
Clamping range pipe Ø: 300-500 mm
Material of clamp body: polyamide
Material of grip head / tensioning strap: StSt
Material of contact piece: Cu/gal Sn
Standard: EN 62561-1

Brand: DEHN
Type: EX BRS 500
Part No.: 540805
or equivalent.

Certificates

 

Technical data

Lightning impulse current (10/350 µs) St/bare (Iimp ) 50 kA
Lightning impulse current (10/350 µs) StSt (Iimp ) 50 kA
Class of lightning current carrying capability acc. to EN 62561-1 N
Connection M10
Clamping range pipe Ø 300-500 mm
Material of clamp body polyamide
Material of grip head / tensioning strap StSt
Material of contact piece Cu /gal Sn
Standard EN 62561-1

Product 540805 was added to Notepad.

Product 540805 was added to the cart.


Separate clamp body

For use with endless tensioning strap (Part No. 540 901), clamping ranges Ø27 (3/4") to 500 mm.

1 Product

Part No. 540810 SCK EX BRS ASSM10 V2A

GTIN 4013364115484, Customs tariff No. (EU): 85359000, Gross weight: 630.00 g, PU: 1.00 pc(s)


Images

Additional information

Pipe clamps for hazardous areas - separate clamp body
Pipe clamp for hazardous areas
for electrical contacting of pipes
in hazardous areas and implementing
lightning equipotential bonding
according to DIN EN 62305-3 (VDE 0185-305-3)
Use in potentially explosive areas
Ex zones 1 and 2 (gases, vapours, mists) and
Ex zones 21 and 22 (dusts)
Separate clamp body
in conjunction with endless tensioning strap (part no. 540 901)
Clamping ranges from 3/4' to D=300 mm
Necessary mounting set (part no. 540902)
available separately
Lightning impulse current (10/350 µs) Cu: 50 kA
Lightning impulse current (10/350 µs) St/tZn: 50 kA
Lightning impulse current (10/350 µs) StSt: 25 kA
Class of lightning current carrying capability acc. to EN 62561-1: N
Clamping range pipe Ø: 27 (3/4")-500 mm
Material of clamp body: polyamide
Material of grip head / tensioning strap: StSt
Material of contact piece: Cu/gal Sn
Standard: EN 62561-1

Brand: DEHN
Type: SCK EX BRS ASSM10 V2A
Part No.: 540810
or equivalent.

Certificates

 

Technical data

Lightning impulse current (10/350 µs) Cu (Iimp ) 50 kA
Lightning impulse current (10/350 µs) St/tZn (Iimp ) 50 kA
Lightning impulse current (10/350 µs) StSt (Iimp ) 25 kA
Class of lightning current carrying capability acc. to EN 62561-1 N
Connection M10
Clamping range pipe Ø 27 (3/4")-500 mm
Material of clamp body polyamide
Material of grip head / tensioning strap StSt
Material of contact piece Cu /gal Sn
Standard EN 62561-1

Product 540810 was added to Notepad.

Product 540810 was added to the cart.


back to top