Air-termination mast with HVI light plus Conductor for metal and roof rafter brackets
The complete kit of the air-termination mast for a top mount on a metal roof/roof rafter bracket is used for the sub-roof installation of the HVI light plus Conductor.
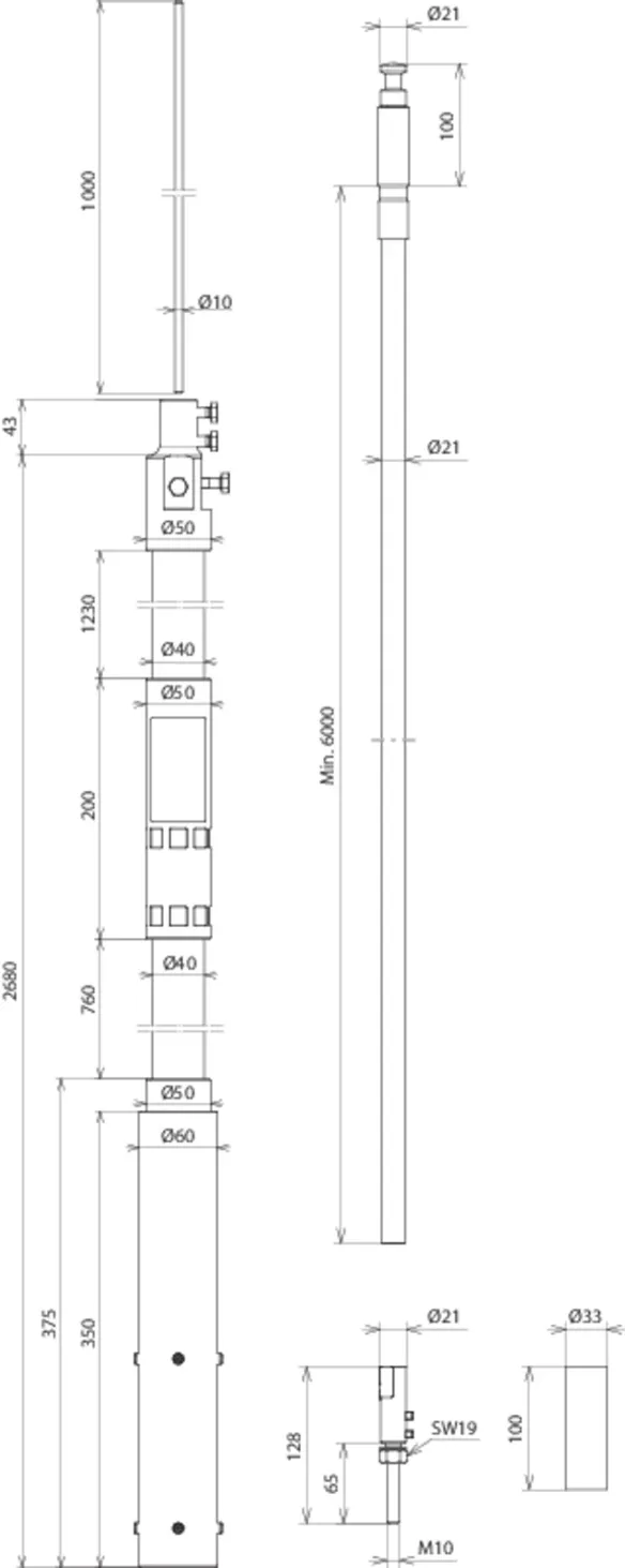
The kit consists of: – Air-termination tip, StSt, Ø10 mm, length 1000 mm. – GRP/Al supporting tube, Ø40/50/60 mm, length 2680 mm – HVI light plus Conductor (pre-assembled, installation inside the tube)
1 Product
Part No.819688
HVI LI PL L6M SR2680 FSP1000 GFK AL V2A
HVI light plus Conductor inside the supporting tube 2680 mm with air-termination tip 1000 mm Isolated air-termination system E.g. of transmitting/receiving systems (parabolic, terrestrial antennas). – Visually modified design by routing the HVI light plus Conductor inside the supporting tube High voltage-resistant, insulated down conductor, for maintaining the separation distance to live parts as per DIN EN 62305-3 (VDE 0185-305-3) Equivalent separation distance s =< 60 cm (in air) or s =< 120 cm (solid material). The supporting tubes are dimensioned to Eurocode 1 (DIN EN 1991-1-4 + DINEN 1991-1-4/NA). HVI light plus Conductor installed in the supporting tube, with special internal sealing end and air-termination tip, Ø10 mm, length 1,000 mm.
Material of supporting tube: GRP / Al
Length of supporting tube: 2680 mm
Transport length: 2680 mm
Colour of conductor: grey ●
Material of conductor: Cu
Equivalent separation distance s (air): ≤ 60 cm
Minimum order length: 6 m
Max. order length: 70 m
Standard: DIN IEC/TS 62561-8 (VDE V 0185-561-8)
Brand: DEHN
Type: HVI LI PL L6M SR2680 FSP1000 GFK AL V2A
Part No.: 819688
or equivalent.